Description
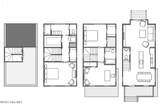
Lot 54 in Phase 2 of Caraleigh Commons. Phase 2 has been approved and is currently in the process of being recorded. This offering is for the future homesite only, providing the opportunity to design and build your own home in one of Raleigh's most distinctive urban neighborhoods. Ideally located just five minutes from Downtown Raleigh, the NC Farmers Market, and Dix Park, Caraleigh Commons sits in the heart of the booming Downtown South District. The community features rooftop decks with skyline views, adjacency to protected woodlands, with direct access to the greenway trail system. Bring your own builder for this ready to build lot with water yoke, sewer tap, underground electric, underground cable, curb and gutter, driveway apron, and grading already in place. Buyers can bring their own design or use plans from our portfolio of over 50 professionally designed home plans. The example home plans and photos in this listing are from the Mod Birch plan, a 3 br, 2.5ba 1525sqft home with a rooftop deck. For the complete list of available plans and builder references please contact the listing broker.
-
0BEDS
-
0.04ACRES
-
0BATHS
-
01/2 BATHS
School Information
Description
Lot 54 in Phase 2 of Caraleigh Commons. Phase 2 has been approved and is currently in the process of being recorded. This offering is for the future homesite only, providing the opportunity to design and build your own home in one of Raleigh's most distinctive urban neighborhoods. Ideally located just five minutes from Downtown Raleigh, the NC Farmers Market, and Dix Park, Caraleigh Commons sits in the heart of the booming Downtown South District. The community features rooftop decks with skyline views, adjacency to protected woodlands, with direct access to the greenway trail system. Bring your own builder for this ready to build lot with water yoke, sewer tap, underground electric, underground cable, curb and gutter, driveway apron, and grading already in place. Buyers can bring their own design or use plans from our portfolio of over 50 professionally designed home plans. The example home plans and photos in this listing are from the Mod Birch plan, a 3 br, 2.5ba 1525sqft home with a rooftop deck. For the complete list of available plans and builder references please contact the listing broker.
© 2025 NCRMLS. All rights reserved. North Carolina Regional Multiple Listing Service, (NCRMLS), provides content displayed here (“provided content”) on an “as is” basis and makes no representations or warranties regarding the provided content, including, but not limited to those of non-infringement, timeliness, accuracy, or completeness. Individuals and companies using information presented are responsible for verification and validation of information they utilize and present to their customers and clients. NCRMLS will not be liable for any damage or loss resulting from use of the provided content or the products available through Portals, IDX, VOW, and/or Syndication. Recipients of this information shall not resell, redistribute, reproduce, modify, or otherwise copy any portion thereof without the expressed written consent of NCRMLS. Data last updated 2025-11-09T16:32:49.08.