Description
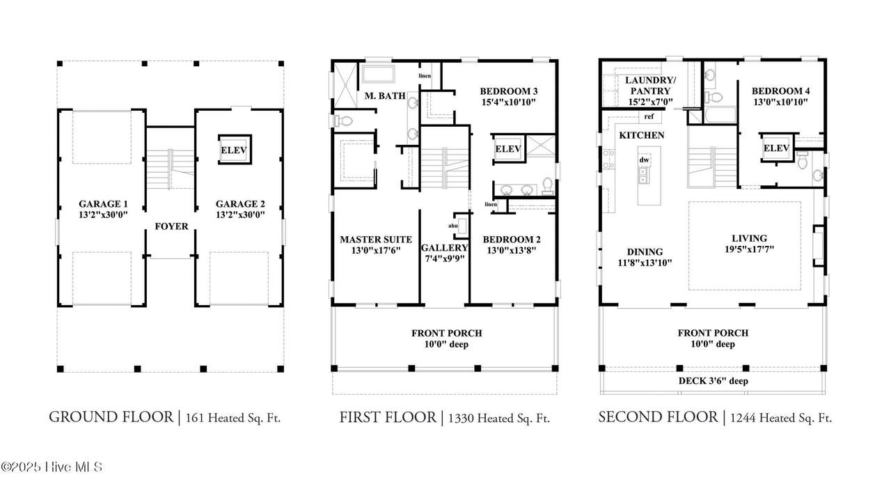
If you've been watching for the perfect coastal home, this proposed construction, to-be-built luxury home opportunity in the coastal community of Tidewater at Ocean Isle - may be the perfect fit. You can use the builder's plan or pick your own. The fit and finishes in the builds of this established NC builder, Solomon Home Builders are thoughful and impecable. With use of Fiber Cement and Board & Batten siding; Modern crown, base, and window/door trims; Luxury laminate and tile flooring; Fireplace; Coastal Shiplap accents throughout; Beautifully equipped kitchens with granite countertops, stainless steel kitchen appliances, undermount sink, tiled backsplash, and upper and lower under cabinet lighting; Owner's Suite with zero entry tiled walk-in shower, large walk-in closet; Site-built custom shelving in all closets; Quartz counters in all bathrooms; Painted garage with built-in drop zone; Covered front porchs, and back patios; pre-wired for wall mounted TVs, exterior security system and ev charger; Sodded yard with irrigation system; And, and, and... Located on a large ~.205 acre lot in the serene waterfont community of Tidewater at Ocean Isle, this Windchase home plan offers more than just luxuryit provides a coastal lifestyle. With charming cobblestone streets and stunning views of Saucepan Creek, the Shallotte River, and the Intracoastal Waterway. Relax at the community pier, enjoy the kayak launch, or unwind by the waterfront fire pityour coastal retreat awaits. Just about 1/4 mile to the public wildlife boat ramp with direct ICW access, and ~4 miles to Ocean Isle Beach, coastal shops, and restaurants. Plus, over 30 golf courses within 30 minutes. Photos are for marketing purposes only. All options/floorplans will be determined by the buyers, builder, and builder allowances. Other builds available for walk through. Call with interest and to view the lot and a Solomon Home Build today!
-
4BEDS
-
0.2ACRES
-
3BATHS
-
11/2 BATHS
-
2,735SQFT
-
$329$/SQFT
School Information
Description
If you've been watching for the perfect coastal home, this proposed construction, to-be-built luxury home opportunity in the coastal community of Tidewater at Ocean Isle - may be the perfect fit. You can use the builder's plan or pick your own. The fit and finishes in the builds of this established NC builder, Solomon Home Builders are thoughful and impecable. With use of Fiber Cement and Board & Batten siding; Modern crown, base, and window/door trims; Luxury laminate and tile flooring; Fireplace; Coastal Shiplap accents throughout; Beautifully equipped kitchens with granite countertops, stainless steel kitchen appliances, undermount sink, tiled backsplash, and upper and lower under cabinet lighting; Owner's Suite with zero entry tiled walk-in shower, large walk-in closet; Site-built custom shelving in all closets; Quartz counters in all bathrooms; Painted garage with built-in drop zone; Covered front porchs, and back patios; pre-wired for wall mounted TVs, exterior security system and ev charger; Sodded yard with irrigation system; And, and, and... Located on a large ~.205 acre lot in the serene waterfont community of Tidewater at Ocean Isle, this Windchase home plan offers more than just luxuryit provides a coastal lifestyle. With charming cobblestone streets and stunning views of Saucepan Creek, the Shallotte River, and the Intracoastal Waterway. Relax at the community pier, enjoy the kayak launch, or unwind by the waterfront fire pityour coastal retreat awaits. Just about 1/4 mile to the public wildlife boat ramp with direct ICW access, and ~4 miles to Ocean Isle Beach, coastal shops, and restaurants. Plus, over 30 golf courses within 30 minutes. Photos are for marketing purposes only. All options/floorplans will be determined by the buyers, builder, and builder allowances. Other builds available for walk through. Call with interest and to view the lot and a Solomon Home Build today!
© 2025 NCRMLS. All rights reserved. North Carolina Regional Multiple Listing Service, (NCRMLS), provides content displayed here (“provided content”) on an “as is” basis and makes no representations or warranties regarding the provided content, including, but not limited to those of non-infringement, timeliness, accuracy, or completeness. Individuals and companies using information presented are responsible for verification and validation of information they utilize and present to their customers and clients. NCRMLS will not be liable for any damage or loss resulting from use of the provided content or the products available through Portals, IDX, VOW, and/or Syndication. Recipients of this information shall not resell, redistribute, reproduce, modify, or otherwise copy any portion thereof without the expressed written consent of NCRMLS. Data last updated 2025-12-11T06:37:16.65.